Циклон ЦВП
Циклон ЦВП предназначен для очистки пылевоздушного потока любого из видов нецементирующихся твердых фракций, образующихся при различных технологических процессах, и допускается применять во всех отраслях промышленности. Применяется для очистки от песка, сажи, известковых включений, стружки, опилок и других составляющих отработки производств.
При очистке циклоном ЦВП в качестве первой ступени необходимо учитывать концентрацию запыленности воздушной смеси, которая не должна превышать 10 г/м3. Наиболее часто данный тип циклона используется для тонкой очистки. Установка циклонов производится в закрытых помещениях, с температурой выше точки замерзания. При установке на открытом воздухе необходимо предпринять меры для предотвращения замерзания водяной системы циклона и подводящей системы водоснабжения.
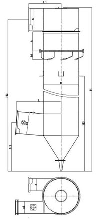
Циклон ЦВП состоит из входного патрубка, корпуса и выхлопной трубы, с нормализатором направления воздушного потока – типа улитка. Снизу циклона подсоединен фланец с отводным конусом, который обеспечивает подачу воды. Пылевоздушный поток поступает в корпус через входной патрубок, который установлен в нижней части циклона, изменяет направление на спиральное. Под действием центробежной силы частицы пыли отбрасываются на водяную пленку образованную на внутренней поверхности циклона, а очищенный воздушный поток выходит через выхлопную трубу с улиткой. Оросительная система циклона обеспечивает равномерное разбрызгивание по внутренней поверхности корпуса (под давлением от 0,2 до 0,25 кгс/см2), в которую подается вода из кольцевого коллектора по прорезиненным трубкам. Для возможности осмотра сопла в верхнем днище улитки предусмотрен люк с застекленной крышкой. Для удаления составляющих твердых фракций, образующихся после очистки пылевоздушного потока, установлено смывное устройство, расположенное на воздухоподводящем патрубке, в месте входа воздуха в корпус циклона.
Изготавливается циклон ЦВП из прочного черного металла толщиной до 3 мм, в стандартном исполнении и в модификации с увеличенной скоростью входящего потока. Увеличение скорости входящего потока достигается за счет установки перегородки во входном патрубке, при этом увеличивается качество очистки, но увеличивается и сопротивление циклона.

Расход воды для орошения стенок циклона ЦВП и промывки воздухоподводящего патрубка
| Наименование | Орошение стенок циклона | Периодическое смывание стенок входного патрубка | ||
| Расход воды, л/с | Число сопел | Расход воды, л/с | Число форсунок | |
| Циклон ЦВП 3 | 0,14 | 3 | 1,1 | 1 |
| Циклон ЦВП 4 | 0,17 | 4 | 1,2 | 1 |
| Циклон ЦВП 5 | 0,21 | 5 | 1,4 | 2 |
| Циклон ЦВП 6 | 0,27 | 6 | 1,6 | 2 |
| Циклон ЦВП 8 | 0,35 | 7 | 2,0 | 3 |
| Циклон ЦВП 10 | 0,43 | 8 | 2,4 | 3 |
Технические характеристики циклонов ЦВП (с водяной пленкой)
| Наименование | Производительность по воздуху м3/ч | D, мм | H, мм | Масса, кг |
| Циклон ЦВП 3 | 1250-2000 | 315 | 2434 | 63,9 |
| Циклон ЦВП 4 | 2000-3200 | 400 | 3014 | 106,7 |
| Циклон ЦВП 5 | 3100-5000 | 500 | 3584 | 161,0 |
| Циклон ЦВП 6 | 4900-7800 | 630 | 4554 | 237,0 |
| Циклон ЦВП 8 | 7700-13000 | 800 | 5699 | 369,7 |
| Циклон ЦВП 10 | 12500-20000 | 1000 | 7044 | 569,5 |