Циклон ЛИОТ
Циклон ЛИОТ применяется для очистки газовоздушного потока образующегося при различных технологических процессах, с мелкодисперсной пылью величиной до 10 мкм. Пыль должна быть: сухой и не волокнистой, без жидкой и капельных фаз составляющих пыли, без образования конденсата. Циклон производится в исполнениях с левым и правым направлением движения очищаемой газовоздушной смеси. Циклон ЛИОТ характеризуется высокой производительностью. Эффективно используется для очистки газовоздушной смеси от сухой и не слипающейся (размер фракции более 10 мкм) пыли.
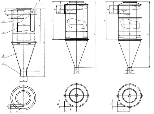
Циклоны типа ЛИОТ допускается устанавливать на линию нагнетания (после вентиляционной установки) и на линию всасывания (перед вентиляционной установкой), при этом поток воздуха в циклон поступает через улитку.
Основные характеристики циклона ЛИОТ приведены в таблице 1.
Таблица 1
| Характеристика | Ед. изм. | Значение |
| Диаметр циклона | мм | От 550 до 1890 |
| Производительность | м3/час | От 1200 до 19200 |
| Эффективность очистки | % | До 90 |
| Рабочая среда – пыль | мкм | До 10 |

Таблица 2 – Типоразмеры циклона ЛИОТ
| Наименование | Производительность по воздуху м3/ч | Диаметр, мм | Высота, мм | Масса, кг |
| Циклон ЛИОТ №1 | 1200-1700 | 557 | 1745 | 63 |
| Циклон ЛИОТ №2 | 2500-3400 | 795 | 2470 | 120 |
| Циклон ЛИОТ №3 | 3900-5200 | 974 | 3010 | 213 |
| Циклон ЛИОТ №4 | 5000-6700 | 1119 | 3455 | 280 |
| Циклон ЛИОТ №5 | 6500-8000 | 1230 | 3650 | 364,5 |
| Циклон ЛИОТ №6 | 7100-9500 | 1330 | 3895 | 449 |
| Циклон ЛИОТ №7 | 8400-11200 | 1445 | 4180 | 518,5 |
| Циклон ЛИОТ №8 | 10300-13800 | 1600 | 4675 | 633 |
| Циклон ЛИОТ №9 | 12600-16800 | 1765 | 5160 | 805 |
| Циклон ЛИОТ №10 | 14400-19200 | 1890 | 5575 | 921 |